Concealed door opening restrictor GEZE BOXER
Manufacturer - GEZE (Germany)Advantages
- more attractive door area without visible elements
- no tripping hazard
- fewer spots for dust to gather
- eliminated risk of crushing foot between leaf and floor-mounted door stopper
- door stopper not required
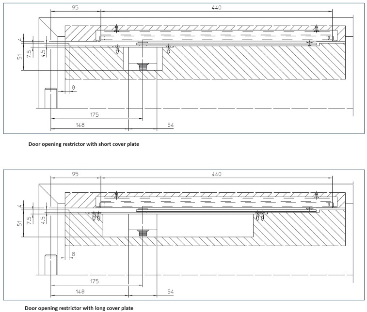
Technical data
- integrated mechanism for restricting door opening and fixing open position without door closer
- without door closing function
- door stopper not required
- suitable for both left and right hand doors
- suitable for standard single or double-action interior doors
- suitable for doors without fire and smoke safety requirements
- compatible with all BOXER guide rails
- suitable for use in combination with double swing door drives with Boxer door closer and Boxer ISM guide rail; only the drive is visible in closed position maintaining full functionality of double doors with integrated closing sequence control according to EN1158
- possible spindle extension up to 8 mm (increments of 2 mm)
- opening restrictor size with short cover plate: 45.1 x 113 x 26 mm / with long cover plate: 45.1 x 338 x 32 mm
- max door opening angle: 140°
- min door leaf thickness: 36 mm with short cover plate / 40 mm with long cover plate




Set
- compatible with all GEZE Boxer guide rails and accessories
- short cover plate or long cover plate for replacing door closer Boxer 2-4


- may be combined with GEZE door drive, Boxer door closer and Boxer ISM guide rail:


All prices include VAT
- Products
- Price
- In Stock
- Quantity
-
BOXER pivot bearing, without railCode: SB00004495Art. Nr.: 156278Price:From €69.44In Stock: 9 pc. -
Boxer guide rail without hold-open function,12mmCode: SB00004374Art. Nr.: 129213Price:From €41.66In Stock: 10 pc. -
Boxer guide rail without hold-open function, 20.7x31 mmCode: SB00004264Art. Nr.: 112161Price:From €66.22In Stock: 14 pc. -
Opening restrictor for GEZE BOXER guide rails 12 mmCode: SB00004377Art. Nr.: 129343Price:From €17.36In Stock: 4 pc. -
Opening restrictor for GEZE BOXER guide rails 20,7 mmCode: SB00004599Art. Nr.: 069780Price:From €16.62In Stock: 11 pc. -
Opening restrictor for 12 mm guide railCode: SB00004373Art. Nr.: 129145Price:From €55.68In Stock: 4 pc. -
Guide rail locking unit for GEZE standard door closers - compatible with T-stop guide rail / Boxer 20.7 mm guide railCode: SB00004600Art. Nr.: 071924Price:From €18.60In Stock: 69 pc.
| Manufacturer | GEZE |
|---|---|
| purpose | for indoors |
| mode of operation | mechanical |
| installation type | built-in, concealed |
| maximum opening angle | 140° |
| body dimensions | ar īso nosegplāksni: 45.1 x 113 x 26 mm / ar garo nosegplāksni: 45.1 x 338 x 32 mm |
















