HAWA DIVIDO 80 H DS2 Mehhanismi süsteem puidust lükandustele ja kaldlae ja 2-punktilise ülemise kinnitusega vaheseinadele.
Toote kood
DIVIDO-80H-DS2
HAWA DIVIDO 80 H DS2 süsteem kaldlae ja 2-punktilise ülemise kinnitusega liugvaheseinte jaoks
Tootja - HAWA (Šveits)HAWA DIVIDO on paindlik lükandustega siseruumide vahesüsteem, mida iseloomustab selge, kaasaegne vormikeel, minimaalne paigalduskõrgus ja atraktiivne disain. Süsteem võimaldab realiseerida mitmesuguseid loomingulisi ideid ruumide kujundamisel, luues ruumile erinevaid kasutusviise või pakkudes privaatsust - ideeideaalne lahendus avalike hoonete, hooldekodude, hotellide, aga ka mitme põlvkonna või pereelamute jaoks. DS-variandid on mõeldud liugvaheseinte ehitamiseks kaldlagedega ruumidesse. Usaldusväärne tehnoloogia koos alumiste juhtrullide ja peente, kvaliteetsete alumiiniumprofiilidega tagab stabiilsuse ja lihtsa libisemise kuni 80 kg kaaluvate puitlaedade puhul. Süsteemi konstruktsioon võimaldab kombineerida laiad avad mitme kitsa piirdeklaasiga kompaktsesse paketti, ilma et see võtaks palju ruumi. Täiendava mugavuse tagamiseks täiendab süsteemi Soft Close mehhanism, mis tagab vaikselt ja õrnalt sulguva lengi.
Tehnilised andmed
- liugmehhanismide süsteem puidust vaheseinte ja liuguste jaoks
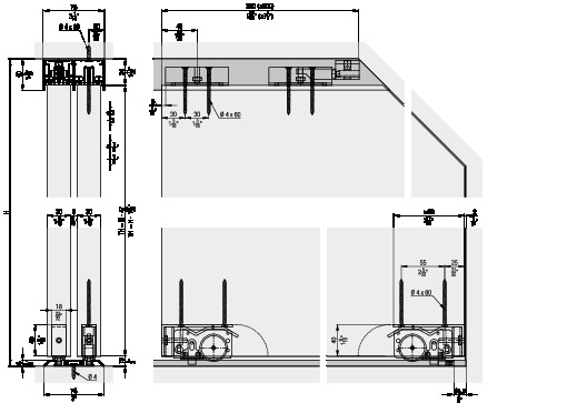
- 2-punktilise ülemise kinnitusega kaldlae konstruktsioonidele
- kaldulehe ülemise sirge serva minimaalne pikkus: 240 mm
- kaldserva nurk: 30°-60°
- põranda- ja laekinnitus koos alumise rulljuhtimisega
- juhisiini paigaldus:
- ülemine kinnitus - kruvitud või liimitud
- veepealne paigaldus
- kandesin ja juhisiin ühe- või kahesoonelisena
- maksimaalne kaal tiibade kohta: 80 kg
- lengi paksus: 28-30 mm
- maksimaalne kõrgus: 2400 mm
- maksimaalne laius: 2000 mm
- maksimaalne avanemise laius: 6000 mm
- kõrguse reguleerimine: +/- 3 mm
- siini pikkus:
- lõigatud individuaalsete mõõtude järgi
- standardpikkus 6000 mm
- nähtava profiili töötlus: alumiinium anodeeritud
- vastab kõrgeimale koormusklassile vastavalt standardile EN 1527 (klass 6 = 100 000 katsetsüklit)
- lisavarustus: Soft Close pidurdusmehhanism
HAWA DIVIDO 80 DS2 Siinitüübid


TEHNILINE DOKUMENTATSIOON
Kõik hinnad sisaldavad käibemaksu
- Tooted
- Hind
- Laos
- Kogus
-
DIVIDO 80 H põhikinnitus 1 puitelengileKood: SB00009809Art. Nr.: 042.3026.075Hind:Alates 315,51 €Laos: 0 tk. -
DIVIDO 80 põrandarööpmel, freesitud, alumiiniumist anodeeritud (hind 1 m kohta)Kood: SB00024594Art. Nr.: 042.3089.990Hind:Alates 17,71 €Laos: 0 m -
DIVIDO 80 põrandarööpmel, kruvitav, alumiiniumist anodeeritud (hind 1 m)Kood: SB00024600Art. Nr.: 042.3040.990Hind:Alates 22,62 €Laos: 0 m -
DIVIDO 80 põrandarööpmel, alumiiniumist anodeeritud (hind 1 m kohta)Kood: SB00024601Art. Nr.: 042.3080.990Hind:Alates 29,80 €Laos: 0 m -
DIVIDO 80 kahekordne põrandakinnitusprofiil koos rööpaga 042.3037, alumiiniumist anodeeritud (hind 1 m kohta)Kood: SB00025944Art. Nr.: 042.3039.990Hind:Alates 70,37 €Laos: 0 m -
DIVIDO 80 kahekordne põrandarööpmel, kruvitav, perforeeritud, alumiiniumist anodeeritud (hind 1 m)Kood: SB00009815Art. Nr.: 042.3041.990Hind:Alates 66,67 €Laos: 0 m -
DIVIDO 80 kahekordne põrandarööpmel, kruvitav, perforeeritud, alumiiniumist anodeeritud (hind 1 m)Kood: SB00024603Art. Nr.: 042.3081.990Hind:Alates 77,44 €Laos: 0 m -
DIVIDO 80 ülemine juhtsiin, alumiiniumist anodeeritud (hind 1 m)Kood: SB00009817Art. Nr.: 042.3049.990Hind:Alates 66,67 €Laos: 0 m -
DIVIDO 80 kahekordne ülemine juhtsiin, alumiiniumist anodeeritud (hind 1 m)Kood: SB00024607Art. Nr.: 042.3011.990Hind:Alates 91,00 €Laos: 0 m
Täiendavad tooted
- Tooted
- Hind
- Laos
- Kogus
-
DIVIDO 80 põrandarööpmel, sooneline, alumiiniumist anodeeritud, 6000 mmKood: SB00009825Art. Nr.: 042.3089.600Hind:Alates 77,35 €Laos: 0 tk. -
DIVIDO 80 põrandakinnitusraudtee, alumiinium anodeeritud, 6000 mmKood: SB00024599Art. Nr.: 042.3040.600Hind:Alates 17,21 €Laos: 0 tk. -
DIVIDO 80 põrandakisko, alumiiniumist anodeeritud, 6000 mmKood: SB00009819Art. Nr.: 042.3080.600Hind:Alates 133,03 €Laos: 0 tk. -
DIVIDO 80 kahekordne põrandakinnitusprofiil rööpale 042.3037, alumiiniumist anodeeritud, 6000 mmKood: SB00024596Art. Nr.: 042.3039.600Hind:Alates 184,65 €Laos: 0 tk. -
DIVIDO 80 põrandarööpmel profiilile 042.3039, alumiiniumist anodeeritud, 6000 mmKood: SB00024595Art. Nr.: 042.3037.600Hind:Alates 64,53 €Laos: 0 tk. -
DIVIDO 80 kahekordne põrandakinnitusraudis, perforeeritud, alumiinium anodeeritud, 6000 mmKood: SB00009816Art. Nr.: 042.3041.600Hind:Alates 295,91 €Laos: 0 tk. -
DIVIDO 80 kahekordne põrandakinnitusraudis, perforeeritud, alumiinium anodeeritud, 6000 mmKood: SB00024604Art. Nr.: 042.3081.600Hind:Alates 344,47 €Laos: 0 tk. -
DIVIDO 80 kate rööpale 042.3039/3041/3081/3082, alumiiniumist anodeeritud (hind 1 m)Kood: SB00009813Art. Nr.: 042.3038.990Hind:Alates 22,52 €Laos: 0 m -
DIVIDO 80 press-fit kate rööpale 042.3039/3041/3081/3082, alumiinium anodeeritud, 6000 mmKood: SB00009814Art. Nr.: 042.3038.600Hind:Alates 97,53 €Laos: 0 tk. -
DIVIDO 80 ülemine juhtsiin, alumiiniumist anodeeritud, 6000 mmKood: SB00009818Art. Nr.: 042.3049.600Hind:Alates 295,91 €Laos: 0 tk. -
DIVIDO 80 kahekordne ülemine juhtraudtee, alumiinium, anodeeritud, 6000 mmKood: SB00009808Art. Nr.: 042.3011.600Hind:Alates 406,03 €Laos: 0 tk. -
DIVIDO 80 vahepeatus ülemisele liistule, ei sobi kokku Soft Close'iga, plastist hallKood: SB00009810Art. Nr.: 042.3031.071Hind:Alates 12,41 €Laos: 0 tk. -
DIVIDO 80 Siini otsaklapp 042.3089, 2 tk, hall plastikustKood: SB00009826Art. Nr.: 042.3090.081Hind:Alates 17,04 €Laos: 0 pāris -
DIVIDO 80 Soft Move ühepoolne 1-leheline 10-60 kgKood: SB00024580Art. Nr.: 042.3103.072Hind:Alates 168,43 €Laos: 0 tk. -
DIVIDO 80 Soft Move ühepoolne 1 leht 61-80 kgKood: SB00009829Art. Nr.: 042.3103.071Hind:Alates 168,43 €Laos: 0 tk.
| Tootja | Hawa |
|---|---|
| Seeria | DIVIDO |
| Siini paigaldus | Põrandasse integreeritud |
| Tegevusviis | Manuaalne |
| Materjal | Alumiinium anodeeritud |
| Lehe materjal | Puit |
| Liugsüsteemi disain | Pealispinnale paigaldatava siiniga |
| Süsteemi tüüp | Sirge liugukse süsteem |
| Kasutamise eesmärk | Siseruumidele |
| Lehe maksimaalne kaal | 80 kg |
| Lehe kõrgus | līdz 2400 mm |
| Lehe laius | līdz 2000 mm |


















































