Paaniklukk komplekt PUIDUST kahepoolsetele ustele BMH PTVA 11 E
Toote kood
BMH-PTVA11-E-K
Paanikalukukomplekt KOKA BMH PTVA 11 jaoks (E-funktsioon)
Tootja - BMH(Saksamaa)- lukukomplekt lukustusvardaga puidust topeltuksele
- automaatse passiivse lehvikulukustusega
- evakuatsioonifunktsioon E
- vastab standardile EN 1125 paanika(häire)ukseseadmete puhul
- sobib tuletõkkeustele
Passiivne lehe funktsioon
Passiivne ja aktiivne ukseleht avatakse samaaegselt, vajutades passiivse ukselehele paanikakäepidemele. Passiivse lehe lukustusvardad haakuvad automaatselt ülemise passiivse lehe lukustusvarda lukuga, mis tagab ka ukse automaatse lukustumise.
Aktiivse ukselehe funktsioon
Seestpoolt:
Seestpoolt saab ukselehe avada ja lukustada võtmega. Lukustatud lukustuspoldi saab koos päästikuga tagasi tõmmata, vajutades paanikakäepidemele.
Väljastpoolt:
Väljastpoolt on uks varustatud fikseeritud käepidemenupuga. Väljastpoolt saab aktiivset ukselehte lukustada ja avada võtmega. Lukustamata asendis on lukustuskeel võtmega sissetõmmatav
TÄHELEPANU
Lukk BMH 6113 PZW aktiivsele ukselehele
- vastab standardile EN 1125 paanika(alarm)ukseseadmete puhul
- sulgemisfunktsioon E
- PZ võtmeava, 1 pöörde päästik
- tsingitud kinnine lukukast
- 9 mm sisseehitatud käepideme ava
- nool ja päästik: nikeldatud teras
- keskpunktide vahemaa: 72 mm
- standardne võlli sügavus D: 65 mm
- telgede sügavused saadaval soovi korral: 65 / 80 / 100 mm
- ümardatud roostevabast terasest esikülg: 235 x 24 mm
- lukku võib kasutada ainult koos sobivate sertifitseeritud paanikakangide ja tarvikutega
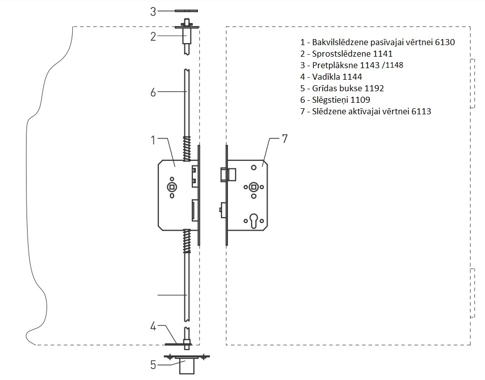
BMH 6130 passiivne lehtlukk
- vastab EN 1125 paanika(häire)ukseseadmetele ja tuleohutusnõuetele
- tsingitud kinnine lukukast
- 9 mm jagatud käepideme ava
- standardne telgsügavus D: 65 mm
- telgede sügavused saadaval soovi korral: 65 / 80 / 100 / 125 mm
- roostevabast terasest esikülg: 235 x 24 mm
- standardne suurus X: 30 mm
- ümardatud näoplaat "kõrva" 60 mm
Ülemine lukk BMH 1141
- tsingitud lukukorpus
- plastikust päästik
- tsingitud esiplaat 54 x 20 mm
- vastab EN 1125 paanika(alarm)uste seadmetele
BMH 1109 lukustusvardad
- läbimõõt: 10 mm
- keere: M6
- pikkus: 1000 / 1500 / 2000 mm
Ülemine lukustusplaat BMH 1148
- suurus 100 x 20 mm
- paksus: 3 mm
- kuju: ümardatud
- kõrva kalle: 60 mm
- materjal: roostevaba teras
Põrandapuks lukustusvarraste jaoks BMH 1192
- reguleeritav
- pukside siseläbimõõt 12 mm
- ovaalne vooder 80 x 50 mm, paksus 1,6 mm
- materjal: roostevaba teras
Alumine sulguri juhik lehel BMH 1144
- juhiku siseläbimõõt: 10,5 mm
- välisläbimõõt: 15 mm
- vooderduse suurus: 60 x 20 mm, paksus: 3 mm
- kuju: ümardatud
- materjal: tsingitud teras
- müra summutav plastist puks

Kõik hinnad sisaldavad käibemaksu
- Tooted
- Hind
- Laos
- Kogus
-
Põgenemisukselukk aktiivsele uksele BMH 6113 PZW 65/72-24 "E" roostevaba teras, vasakKood: SB00013526Art. Nr.: 6113.000003Hind:Alates 207,70 €Laos: 0 tk. -
Põgenemisukselukk aktiivsele uksele BMH 6113 PZW 65/72-24 "E" roostevaba teras, paremKood: SB00013527Art. Nr.: 6113.000004Hind:Alates 207,70 €Laos: 0 tk. -
Puitukselukk passiivsele uksele BMH 6130 65/24, roostevaba teras, vasakKood: SB00013533Art. Nr.: 6130.000031Hind:Alates 189,10 €Laos: 0 tk. -
Keldrilukk passiivsele puituksele BMH 6130 65/24, roostevaba teras, paremKood: SB00013534Art. Nr.: 6130.000032Hind:Alates 189,10 €Laos: 0 tk. -
Lukk 1141 ülemine uksepuu, 24x54mm, tsingitudKood: SB00013471Art. Nr.: 1141.000012Hind:Alates 39,68 €Laos: 0 tk. -
Vedruga võti korpuslukule 1109, Ø10/1000mm, tsingitudKood: SB00013455Art. Nr.: 1109.000004Hind:Alates 33,48 €Laos: 0 tk. -
Keldriluku vedruga võti 1109, Ø10/1500mm, tsingitudKood: SB00013456Art. Nr.: 1109.000005Hind:Alates 34,72 €Laos: 0 tk. -
Puidust uste vasturaud 1148, ülemine, roostevaba terasKood: SB00013475Art. Nr.: 1148.000001Hind:Alates 9,30 €Laos: 0 tk. -
Lukupoldi 1144, alumine, Ø10,5/60x20mm, tsingitud, juhtpoltKood: SB00013474Art. Nr.: 1144.000001Hind:Alates 5,95 €Laos: 0 tk.
Täiendavad tooted
- Tooted
- Hind
- Laos
- Kogus
-
Põrandapuks 8028-4V/31, kergelt tsingitudKood: SB00003760Art. Nr.: 3473961Hind:Alates 12,77 €Laos: 46 tk. -
Põrandapuks 11 mmKood: SB00014151Art. Nr.: IN17400Hind:Alates 6,39 €Laos: 17 tk. -
Varda juht M10, messingistKood: SB00016040Art. Nr.: 7297 0000 40Hind:Alates 3,30 €Laos: 35 tk. -
1192 põrandapuks lukustusvarraste jaoks Ø12/80x50mm, roostevaba terasKood: SB00013481Art. Nr.: 1192.000001Hind:Alates 44,64 €Laos: 0 tk. -
vasturaud 5853 10mm loputuspoldile 5853Kood: SB00016036Art. Nr.: 5853 0100 33Hind:Alates 1,51 €Laos: 68 tk.
| Tootja | BMH |
|---|---|
| Luku tüüp | Ühepunkilised lukud hingedel ustele |
| Luku toimimine | mehaaniline |
| Paigaldamise tüüp | Eemaldatav |
| Kasutamise eesmärk | Siseustele/välisustele |
| Lehe materjal | Puidust ustele |
| Kandevõime | Kõrge |
| Kasutusklass vastavalt standardile EN 12209 (DIN 18251) | Klass 3 vastavalt EN 12209 / DIN 18251. |
| Põgenemisukse varustus | Vastab standardile EN 1125 - Paanikaukseseadmed |
| Evakueerimisfunktsioon | E |
| Tulekaitse | vastab EN tuleohutusnõuetele |
| Ühilduvuse standard | Saksa (DIN) |
| Võimalik telje sügavus | 80 / 100 mm (pēc individuāla pasūtījuma) |
| Ukse suund | Tellimisel tuleb täpsustada ukse avanemise suund |
| Lukustusfunktsioon | PZ |
| Keskkaugus PZ | 72 mm |
| Komplektis sisaldub: | slēdzene aktīvajai vērtnei, slēdzene pasīvajai vērtnei, sprostslēdzene |
| Komplektis sisaldub: | slēgstieņi, slēgstieņu pretplāksnes, grīdas bukse, vadīkla |
| Lukustuskast | Tsingitud suletud |
| Lukupäästiku materjal | Nikeldatud teras |
| Lukupäästik | võtmega sissetõmmatav |
| Lukustuspoldi materjal | Nikeldatud teras |
| Poldi eend | 11 mm |
| Lukustuspolt | 1 pööre |
| Heliisolatsioon | Puudub |
| Telje sügavus | 65 mm |
| Nelinurkse käepideme telje suurus | 9 mm |
| Esiplaadi kuju | Ümardatud |
| Esiplaadi laius | 24 mm |
| Esiplaadi pikkus | 235 mm |
| Esiplaadi viimistlus | nerūsējošais tērauds |



































